| KEY PROJECTS |
ARCHIVE
about
contact
| KEY PROJECTS |
ARCHIVE
about
contact
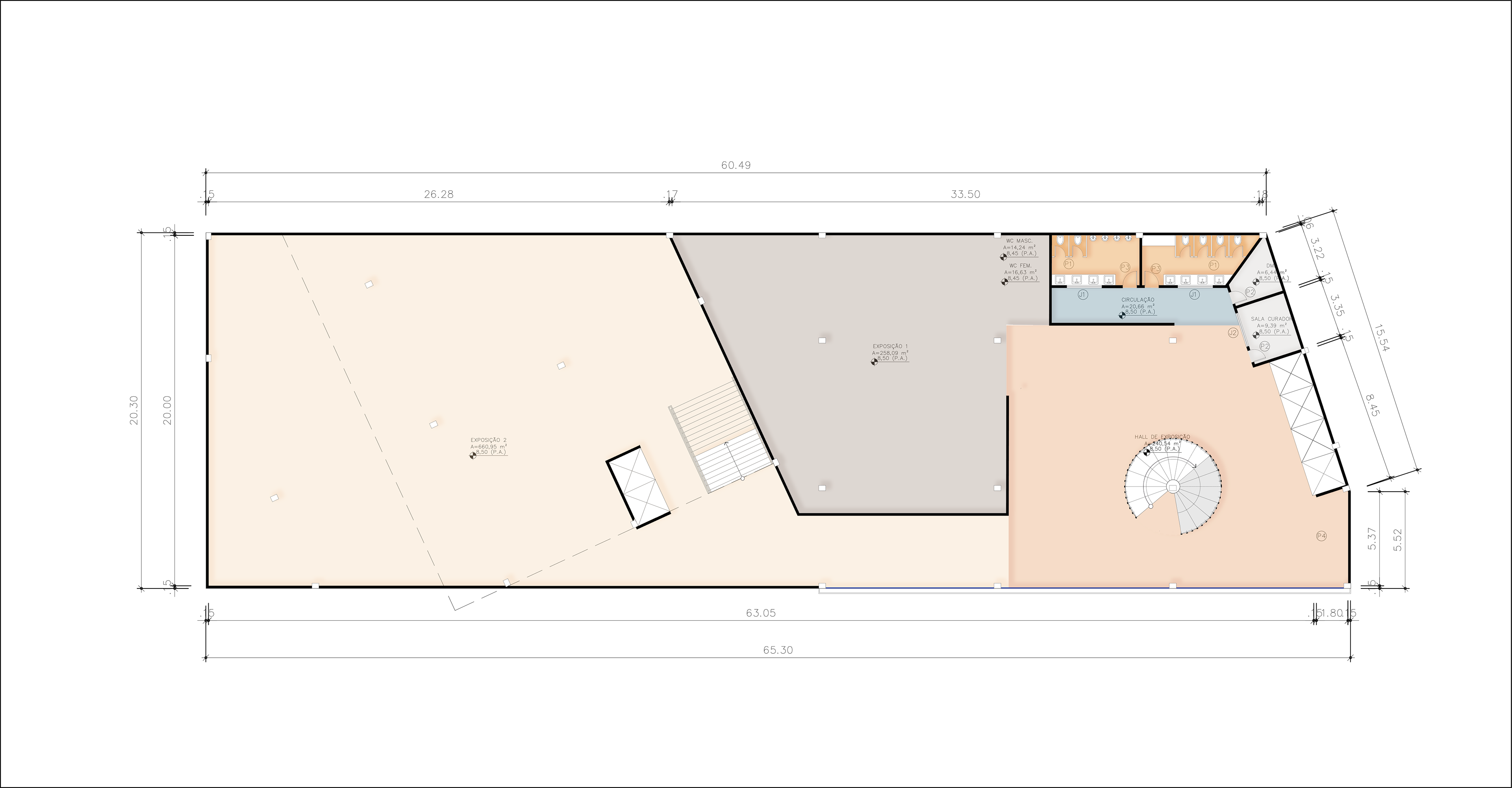
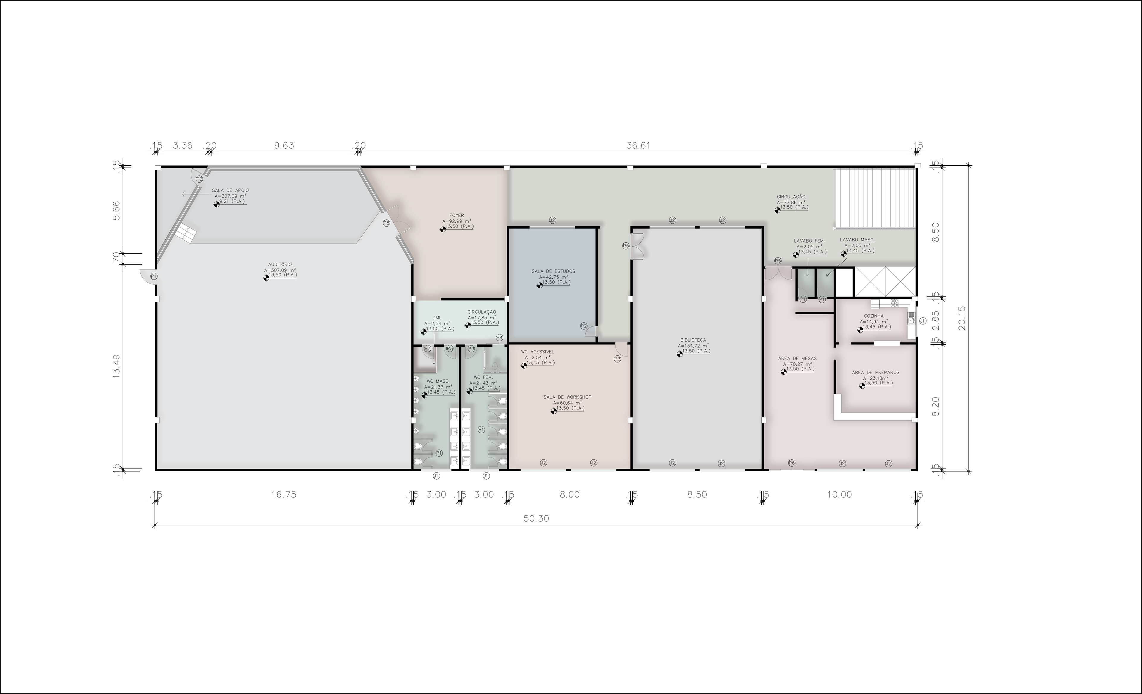
lantas de representação
Detalhamento